15-î

Подземный переход, ул. Каля Ешилор, 3/1
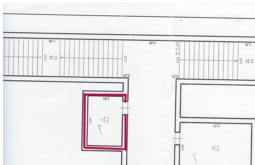
Характеристика лота
  • Адрес: Кишинэу сектор Буюкань, ул. Каля Ешилор, 3/1
  • Площадь: 11,30 кв.м
  • Этаж(тип): -1
  • Тип: Имущественный найм
  • Срок(лет): 5
  • Первоначальная стоимость годового найма (лей): 18 000
Cчёт

Для пенсионеров, людей с ограниченными возможностями и ветеранов, с условием что являются собственниками недвижимого имущества в зданиях или прилегающих дворах,стоимость билета участника составляет 0,1 от минимальной зарплаты по экономике